登录
注册
购物车
(
0
)
最近加入
[name]
¥
[price]
x
[num]
立即结算(
0
)
合计:¥
0.00
共
0
件商品
全部分类
水质监测仪
PH/ORP仪表
电导/电阻仪
溶氧和余氯
仪表电极常用配件
其它仪器仪表
水质分析仪
多参数水质监测仪
浊度计/浓度计
天平仪器
滴定仪
电子秤
流量液位压力
流量计
压力表
液位计
温度变送器
其他仪表配件
压力变送器
其他变送器
物位计
计量泵
电磁隔膜计量泵
机械隔膜计量泵
柱塞式计量泵
液压隔膜计量泵
计量泵配件
其他类型计量泵
液体搅拌机
KD小型搅拌机
D型立式搅拌机
ML型慢速搅拌机
C型移动式搅拌机
其他搅拌器
气动隔膜泵
塑料气动隔膜泵
金属气动隔膜泵
食品级隔膜泵
电子级隔膜泵
隔膜泵配件
成套加药系统
循环水加药装置
RO反渗透装置
干粉投加装置
配电箱定制
非标系统订制
纯水设备
RO膜及膜壳
控制阀门
过滤产品
药箱和储罐
水处理耗材
其它产品
标准溶液
管路配件
泵类产品
螺杆泵
其它
变频器
鼓风机
水泵
离心泵
潜水泵
磁力泵
污水泵
自吸泵
管道泵
增压泵
其他类型泵
水质监测仪
流量液位压力
计量泵
液体搅拌机
气动隔膜泵
成套加药系统
纯水设备
水质监测仪
〉
电导/电阻仪
〉 科瑞达CCT-8301A常温/高温电导率仪表roc工业在线水质检测分析仪
科瑞达CCT-8301A常温/高温电导率仪表roc工业在线水质检测分析仪
价格
¥0.00
市 场 价 格:
0.00
优 惠 价:
0.00
品 牌 名 称:
三信
商 品 编 码:
规 格 型 号:
产 品 名 称:
备 注:
+
-
加入购物车
商品介绍
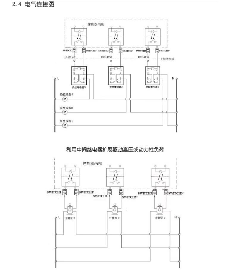
三信CCT-8301A是一款单路电导率/TDS/电阻率/温度组态变送控制器,支持多种电导池型号(如CON2126Y-13、CON2124Y-13、CON3123Y-13等),适用于常温及高温高压环境。设备测量范围宽,电导率可达0.1μS/cm~100.0mS/cm,电阻率支持50kΩ·cm~18.25MΩ·cm,TDS范围为0.25ppm~50ppt,温度测量范围(0~170)℃。具备0.01μS/cm电导率分辨率和±0.5℃温度准确度,采用Pt1000温度元件,确保高精度检测。支持双路隔离4~20mA电流输出(精度±0.1mA)、3路光电开关控制输出,配备RS485 Modbus通讯接口,便于系统集成。电源为DC 24V±4V,功耗低,防护等级达IP65,适合面板嵌装式安装,广泛应用于纯水、超纯水、工业循环水等水质监控系统中。
售后保障
商品(50000)
手机社区
0
电话号码
13817527088
置顶